Projet du Stand

• Annecy (Haute-Savoie)

Aménagement et division d’un appartement de 160 m² en deux appartements.

Cet appartement de 160 m² a fait l’objet d’une division intelligente en deux appartements indépendants, pensés pour offrir un excellent niveau de confort tout en maximisant la valeur patrimoniale du bien. Chaque logement bénéficie d’une distribution fluide et équilibrée, avec des espaces clairement définis entre les zones jour et nuit. La division respecte une logique de confort acoustique et de fonctionnalité, permettant une indépendance totale entre les deux appartements. Cette configuration en fait un bien particulièrement attractif pour la revente, répondant aussi bien à une clientèle d’investisseurs qu’à des acquéreurs souhaitant habiter l’un des logements tout en valorisant l’autre.

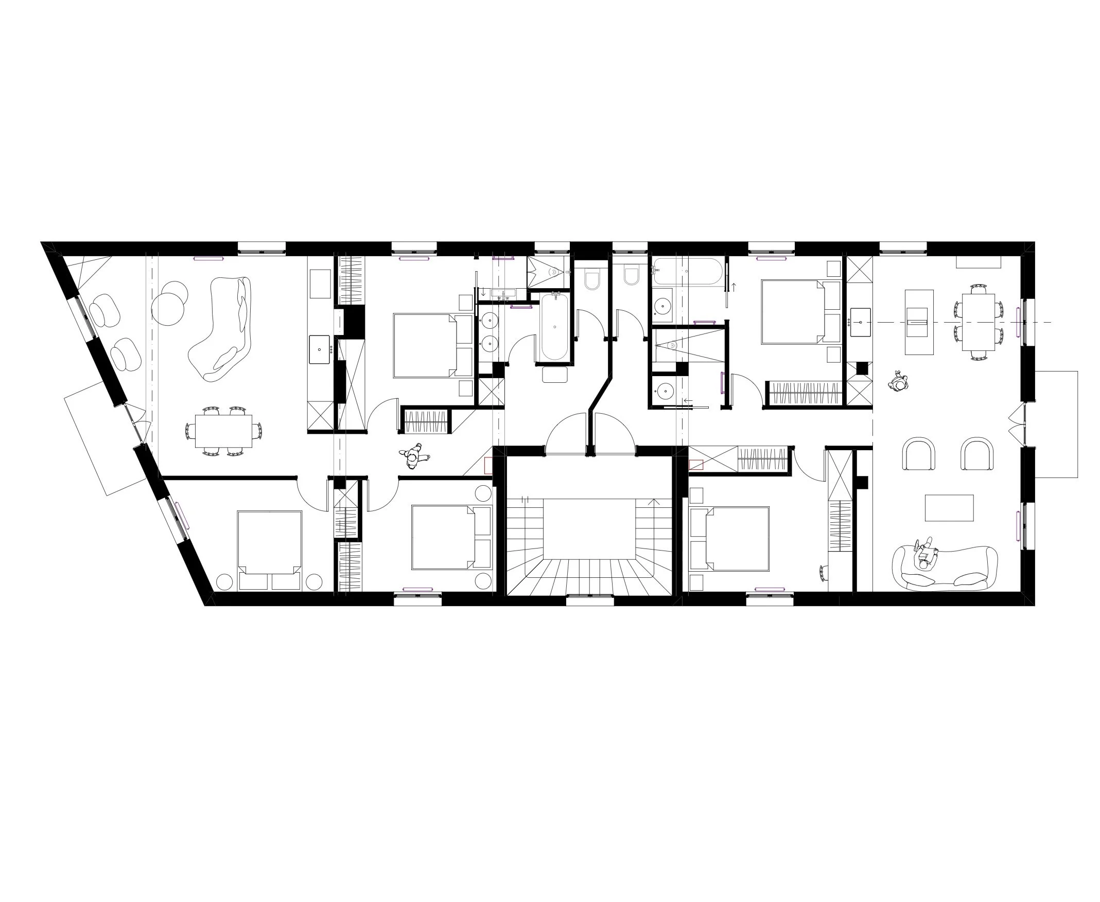
Plan d'état des lieux d'un appartement situé à Annecy dans le but d'une rénovation complète.

Plan d’état des lieux

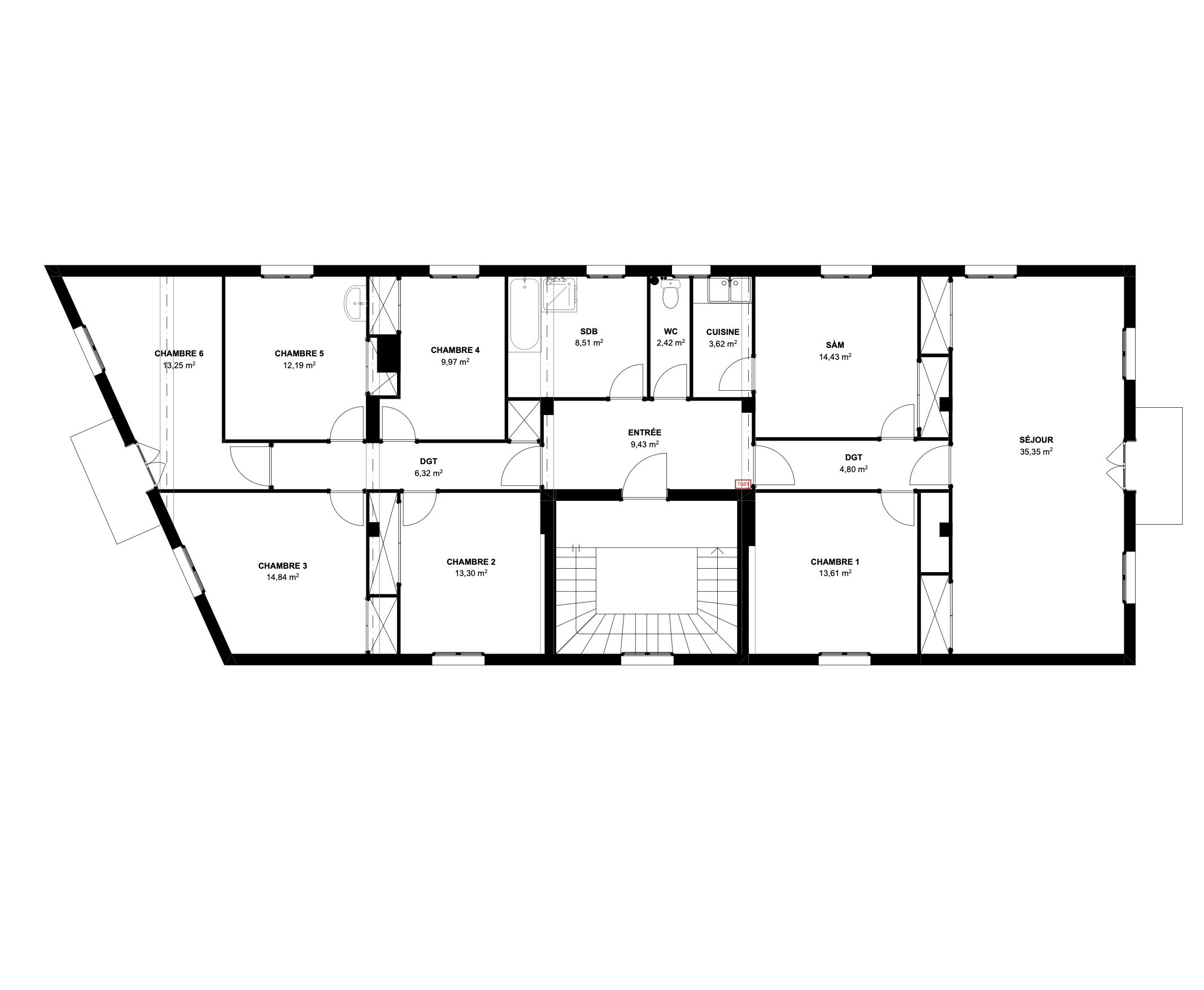
Plan d'aménagement pour une rénovation complète d'un appartement à Annecy, divisé en deux pour créer deux appartements indépendants offrant de beaux volumes et des prestations haut de gamme.

Plan d’aménagement

L’appartement n°1

______

L’appartement T4 situé sur la partie gauche se distingue par ses volumes généreux et sa configuration particulièrement agréable à vivre. Dès l’entrée, la circulation est fluide et mène naturellement vers une grande pièce de vie bénéficiant d’une belle luminosité. Cet espace accueille un salon convivial, une salle à manger ainsi qu’une cuisine ouverte, offrant un cadre idéal pour la vie quotidienne comme pour la réception. La zone nuit est clairement séparée, garantissant calme et intimité. Elle se compose de trois chambres confortables, toutes deux dimensionnées pour accueillir des rangements intégrés sans perte d’espace. L’appartement dispose d’une salle de bains fonctionnelle, pensée pour un usage familial, ainsi que de rangements optimisés répartis intelligemment dans le logement, renforçant le confort et la praticité au quotidien. Conçu pour répondre aux attentes actuelles du marché, ce T4 offre un équilibre réussi entre surface, fonctionnalité et luminosité. Son agencement rationnel et son atmosphère chaleureuse en font un bien particulièrement attractif, aussi bien pour une résidence principale que pour un investissement locatif de qualité.

L’appartement n°2

____________

Le T3 situé sur la partie droite de l’ensemble a été conçu dans une logique d’optimisation maximale des surfaces, tout en conservant des volumes confortables et agréables à vivre. L’entrée s’ouvre sur une pièce de vie lumineuse, regroupant le salon et la salle à manger dans une configuration fonctionnelle et conviviale. La cuisine, judicieusement positionnée, s’intègre harmonieusement à l’espace sans nuire à la lisibilité des volumes. L’espace nuit est distinct de la zone jour, garantissant calme et intimité. Il se compose de deux chambres bien proportionnées, offrant chacune un véritable confort d’usage et la possibilité d’aménager des rangements adaptés. Malgré une surface plus compacte, chaque pièce bénéficie d’une implantation rationnelle, sans perte d’espace.

Précédent
Précédent

Projet Gobelins

Suivant
Suivant

Projet W&W Genève