Projet Ducs de Savoie

• Thonon-les-bains (Haute-Savoie)

Rénovation complète d'un appartement de 61 m² dans le Chablais, au bord du lac Léman.

Projet en cours... Chantier prévu en 2026.

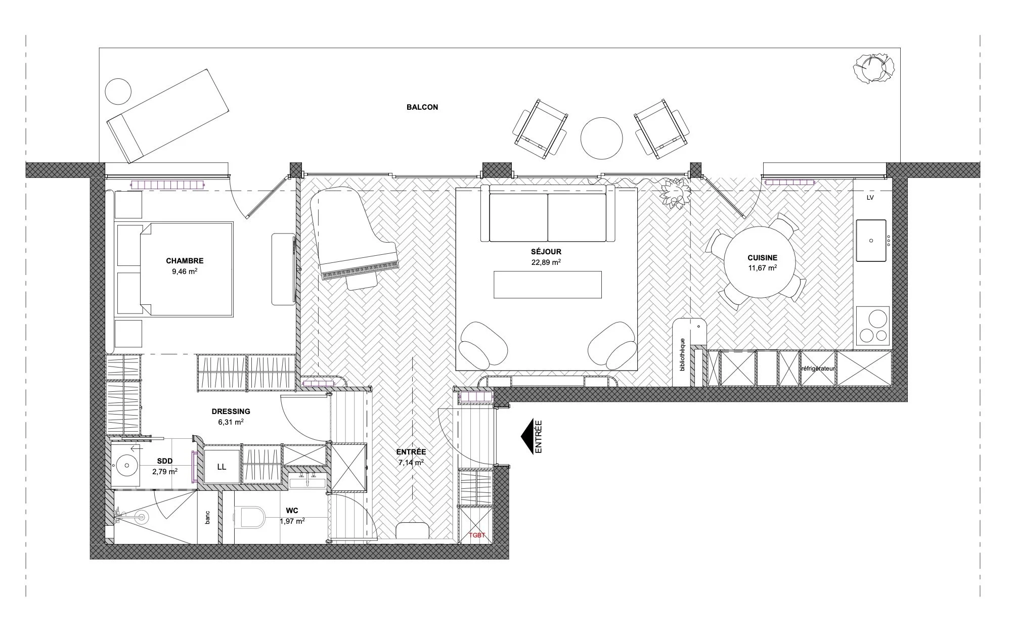
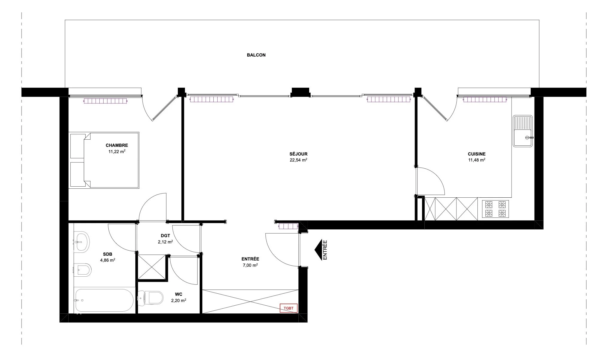
Découvrez cet appartement de 60 m² situé à Thonon-les-Bains, au cœur d’une résidence emblématique des années 70, entièrement repensé pour offrir un intérieur à la fois fonctionnel, chaleureux et fidèle à l’esprit d’origine du bâtiment. Le projet de rénovation a été conçu avec une volonté forte : préserver le charme et la cohérence architecturale des années 70, tout en répondant aux besoins actuels d’un couple à la recherche de confort et de praticité au quotidien. Les choix de matériaux, de couleurs et d’agencements ont été guidés par cette époque, créant une atmosphère authentique et intemporelle. L’appartement se distingue par une optimisation intelligente des espaces, favorisant la fluidité des circulations et le rangement, sans compromis sur l’esthétique. Chaque pièce a été pensée pour être fonctionnelle, lumineuse et agréable à vivre, avec une attention particulière portée aux détails et aux finitions. Situé à Thonon-les-Bains, à proximité du lac Léman, des commerces et des transports, ce bien allie qualité de vie, caractère et fonctionnalité, faisant de cet appartement une solution idéale pour un couple souhaitant vivre dans un lieu à la fois pratique et chargé d’histoire.

Précédent
Précédent

Projet La Ferme de Rochebrune

Suivant
Suivant

Projet D. de Bellegarde