Projet La Ferme de Rochebrune

• Megève (Haute-Savoie)

Rénovation complète d'un appartement de 40 m² au cœur de Megève.

Situé à Megève, cet appartement en duplex de 40 m² a fait l’objet d’un aménagement complet des espaces afin d’offrir un lieu fonctionnel, chaleureux et parfaitement adapté à l’accueil de 4 personnes. L’ensemble du projet a été pensé pour optimiser chaque mètre carré, tout en modernisant les volumes et les usages. L’agencement intérieur a ainsi été entièrement repensé pour créer une circulation fluide et maximiser les rangements, sans jamais compromettre le confort ni l’esthétique.

L’ambiance s’inspire directement de l’esprit chalet de montagne, recherché par les clients pour leurs séjours à Megève. Le bois y occupe une place centrale, avec la présence de sapin thermo-traité en habillage mural, apportant chaleur et authenticité. Ce matériau traditionnel est subtilement mis en valeur par des choix plus contemporains. Le contraste des matières joue un rôle clé dans le projet : un parquet en chêne clair à larges lames vient éclaircir l’espace et renforcer la sensation de volume, tandis que le béton ciré introduit une touche minérale élégante. Cette combinaison crée un équilibre harmonieux entre tradition alpine et design contemporain.

Élément fort de la rénovation, l’escalier en acier thermolaqué blanc devient une véritable pièce architecturale. À la fois sculptural et fonctionnel, il structure l’espace et affirme le parti pris moderne du projet, tout en s’intégrant avec finesse dans l’environnement boisé.

Ce projet de rénovation à Megève illustre parfaitement la possibilité de transformer un petit espace en un lieu de vie optimisé, esthétique et adapté aux usages contemporains, sans renier le charme et l’identité des intérieurs de montagne.

Avant

Niveau 1

Niveau 2

Après

Un lieu idéal pour laisser l’imagination et la créativité s’exprimer.

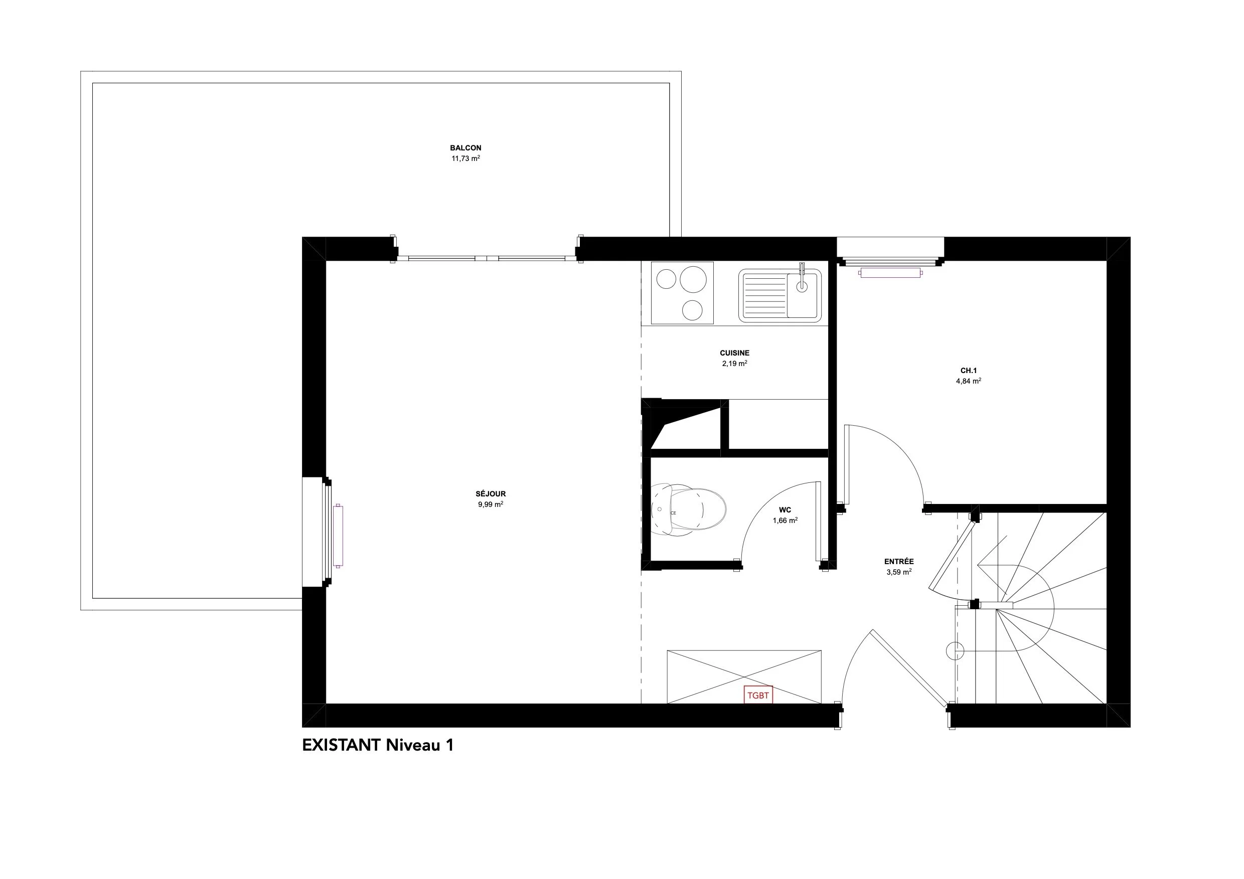
Plans de l’existant

Relevé métré réalisé sur place

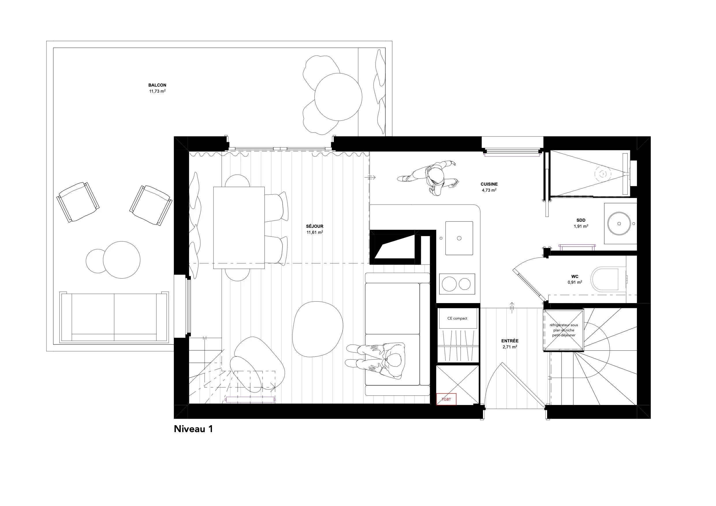
Plans d’aménagement

Version n°1

Dans cet appartement en duplex situé à Megève, le plan d’aménagement avec mezzanine a été conçu pour optimiser au maximum les 40 m² tout en apportant une vraie dimension architecturale au projet. La création d’une mezzanine permet de libérer de l’espace au niveau principal et de structurer les fonctions de manière claire : un espace de vie convivial en partie basse et un espace nuit en hauteur. Cette configuration offre une lecture fluide des volumes tout en augmentant la capacité d’accueil. Véritable pièce maîtresse du projet, l’escalier en acier thermo-laqué blanc devient un élément central à la fois fonctionnel et sculptural. Son design contemporain contraste avec la chaleur du bois omniprésent, créant un équilibre subtil entre modernité et esprit chalet. Ce plan d’aménagement met l’accent sur l’optimisation intelligente des petits espaces, avec des rangements intégrés et une circulation pensée dans les moindres détails. La mezzanine apporte également une sensation de volume et de hauteur, renforçant le caractère atypique et chaleureux de cet appartement de montagne. Ce projet illustre une approche innovante de la rénovation en altitude, idéale pour une résidence secondaire à Megève, alliant design contemporain, fonctionnalité et charme alpin.

Plans d’aménagement

Version n°2

Dans cette seconde proposition d’aménagement pour un appartement situé à Megève, le choix a été fait de supprimer la mezzanine afin de privilégier une chambre double confortable à l’étage. Ce plan mise sur une organisation plus classique mais aussi plus spacieuse, offrant une véritable chambre indépendante. L’espace nuit gagne en confort, en intimité et en fonctionnalité, avec une circulation plus fluide et des volumes mieux exploités. L’étage est ainsi entièrement dédié au repos, avec une implantation du lit optimisée et des rangements intégrés qui se fondent dans l’architecture intérieure. Cette configuration permet de créer une atmosphère plus calme et enveloppante, idéale pour des séjours prolongés en montagne. Au niveau inférieur, l’espace de vie reste ouvert et convivial, favorisant les moments de partage tout en conservant une séparation claire des usages entre jour et nuit. Cette version du projet répond parfaitement aux attentes de clients recherchant un appartement de montagne à la fois chaleureux, fonctionnel et confortable, tout en conservant une esthétique contemporaine inspirée des codes du chalet à Megève.

Précédent
Précédent

Projet B.

Suivant
Suivant

Projet Ducs de Savoie